Imagem de fundo

A figura abaixo apresenta imagens em perspectiva de uma mesma peça.A representação orto...

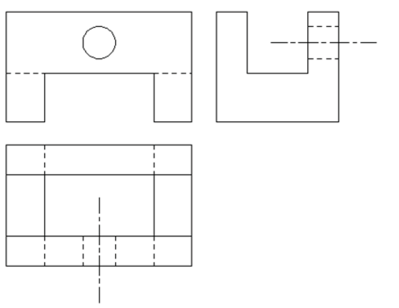
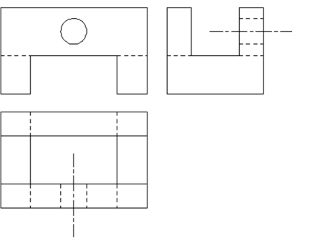
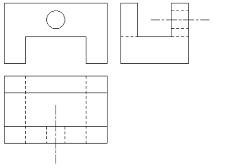
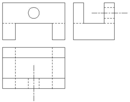
A figura abaixo apresenta imagens em perspectiva de uma mesma peça.



A representação ortogonal correta dessa peça é:

A

B

C

D

E